带你去北京《大鱼海棠》电影工作室总部看看吧!

日期 | 2018-01-31 来源 | 设计癖

  2016年,一部《大鱼海棠》引来了业界的广泛讨论。尽管这部电影非常一般,剧情弱智,但是,画风还是很唯美的。整部电影下来,记忆犹新的是大福建的土楼,恢弘壮丽,建筑之美。

WDCM上传图片

  2017年,动画电影《大鱼海棠》在第十五布达佩斯2017国际动画节上获得最佳动画奖。

WDCM上传图片

  仁者见仁智者见智,彼岸天工作室终于有了一个崭新的专属工作室。

WDCM上传图片

  吉里(北京)国际艺术区内聚集了各类影视产业企业,彼岸天总部新办公室搬迁到朝阳区北京季李国际艺术区C3区。

WDCM上传图片

  大鱼海棠的新办公空间选定在9米层高的一座老厂房内。在保留厂房原有围墙结构的同时,为稳定提供了新的地基。

WDCM上传图片

  内部新的钢结构增加了新的功能,而不影响整体工业气氛。由于该地区充满灰色植物,新立面涂成白色,并延伸到室内空间,与木材纹理搭配,提供透明和纯净的感觉。

WDCM上传图片

  在大空间里限定出众多围和与半围和的室内空间。

WDCM上传图片

  中庭的圆形广场的灵感来自于“大鱼海棠”表现为经典场景。保持土楼的特点,为核心的交流点,从空间设计上塑造一种强烈的集体归属感。

WDCM上传图片

  广场的三个四分之一在一个圆圈里下沉,作为一个角型的阶梯剧院,还有一个讨论、观看电影和开会的地方。

WDCM上传图片

  广场周围围绕着一个工作区,包括封闭的、半开放的办公室和创建者的办公空间。

WDCM上传图片

  临近南立面是一个长廊,一半作为电影海报展示,另外一半为微缩景观。

WDCM上传图片

  二层为独立创作空间与两个创始人工作室。

WDCM上传图片

  建筑的西侧有各种各样的立面,从两层到四层,包括大的阅览室,一个封闭的观察室,健身房,淋浴间,半地下厨房,晚餐和宴会空间,还为预生产团队提供临时空间,还有一个可以靠加班休息的睡眠空间。

WDCM上传图片

 

WDCM上传图片

 

WDCM上传图片

  整个设计是为了保持一个矩形建筑的建设,而内部空间配置放弃了矩形。

WDCM上传图片

  室内立面不再是单一的水平,而是不同的功能和地域,通过走廊和台阶连接起来。这些层被用来达到最大效果。

WDCM上传图片

  整个立面的开窗对应室内不同的标高空间,将建筑内部的活动与功能映射到建筑外表之上,晚上从墙外看到的是室内是带有场景化的节奏感。

WDCM上传图片

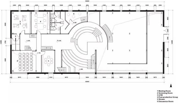
  一层平面图:

WDCM上传图片

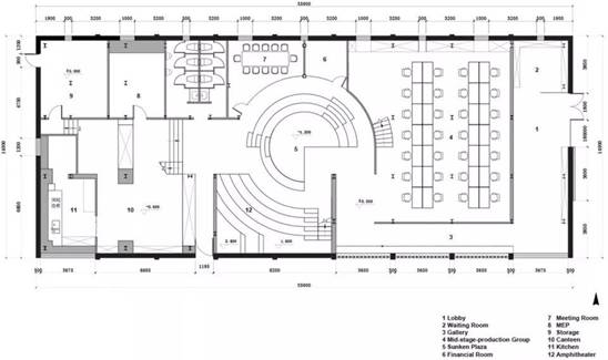
  二层平面图:

WDCM上传图片

  三层平面图:

WDCM上传图片

  剖轴侧图:

WDCM上传图片

  这么有趣的办公室,想不想去看看呢?